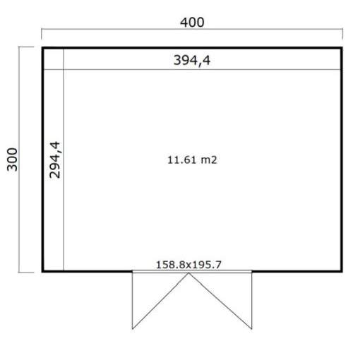
Tuinhuis Quby 400 x 300 cm
-
Tuinhuis Quby 400 x 300 cm
Merk: Outdoor Life Dakbedekking: Asfaltpapier Houtsoort: Onbehandeld Noord-Europees vuren Houtdikte: 28 mm Alle specificaties -

-

-

-

Kenmerken
| Merk | Outdoor Life |
| Dakbedekking | Asfaltpapier |
| Houtsoort | Onbehandeld Noord-Europees vuren |
| Houtdikte | 28 mm |
| Breedte | 400 cm |
| Diepte | 300 cm |
| Buitenmaat | 303 x 403 cm |
| Dakmaat | 300 x 400 cm |
| Funderingsmaat | 300 x 400 cm |
| Nokhoogte | ca. 224 cm |
| Deurhoogte | ca. 190 cm (inclusief kozijn) |
| Ramen | Enkel glas 4 mm |
| Dakafwerking | Plat dak |
| Model | Modern model |
| Bevestigingsmaterialen | Inclusief |
Hout is een natuurlijk product met unieke eigenschappen. Lees alles over de kenmerken en natuurlijke variaties van hout. Meer informatie







